Продажа : Привлекательная и отлично расположенная квартира в Белгравии, Лондон
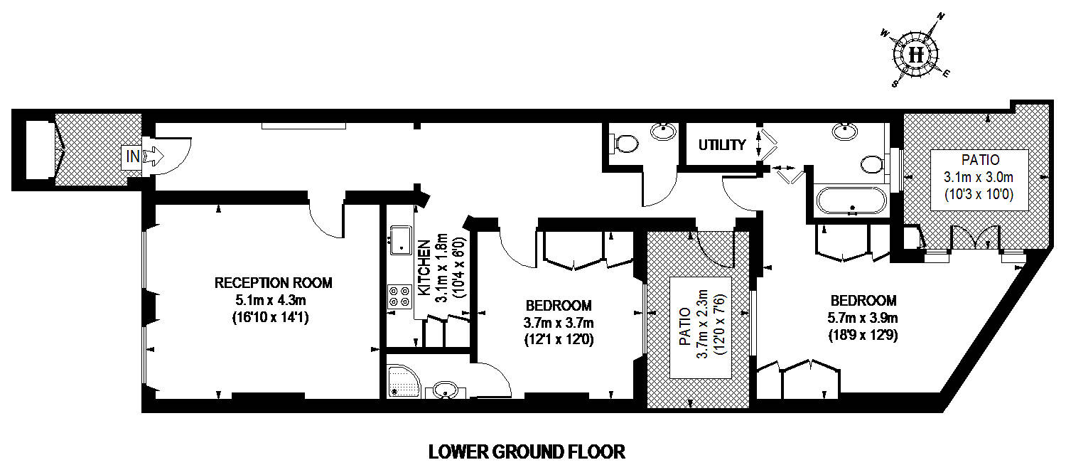
Спален: 2, Ванных комнат: 3
Площадь: 96м2
Район: Белгравия, Лондон
Общая площадь: 96 м2
Жилая площадь: 57 м2
Этажность дома: 5
Спальных комнат: 2
Ванных комнат: 3
Гостиных комнат: 1
Компактная кухня
Встроенные шкафы
Личный сад: 2
Личная парковка
Ближайшие станции метро: Knightsbridge, Hyde Park Corner, Sloane Square
Очень привлекательная и отлично расположенная квартира в великолепном доме в Белгравии. Роскошные апартаменты с двумя просторными спальнями, прихожей, великолепно оборудованной ванной и кухней и двумя шикарными патио непременно понравятся даже самым взыскательным владельцам. Обилие дневного солнечного света делает жилье просторным и теплым. Интересное интерьерное и планировочное решение идеально сочетается с общей картиной постройки. Дивные фасады дома с штукатуренной отделкой выглядят стильно и современно.
Недвижимость в Лондоне в Белгравии находится рядом с пересечением Chesham Place и Lowndes Street. Широкий выбор всевозможных достопримечательностей делает жилье в центре Белгравии еще более привлекательным. В шаговой доступности расположены:
Ханс плейс Гарден
«The Star Tavern»
«Greenburgh Dr. A. L.»
«The Carlton Tower»
Магазин «Waitros»
Белгрейв Сквер Гарден
Транспортная сеть
Квартира в Белгравии идеально расположена по отношению к транспортным путям района и столицы в целом. Общественные автобусы, метро, поезда всегда готовы доставлять пассажиров в нужное место за короткий срок:
Станция метро Найтсбридж - 0,1 мили
Станция метро Hyde Park Corner - 0,4 мили
Станция метро Слоун Сквер - 0,4 мили
Остановка речного автобуса Cadogan Пьер - 1,1 мили
Остановка речного автобуса Millbank области Пьер - 1,4 мили
К аэропорту Хитроу - 13,2 мили
Учебные заведения
Жилье в центре Белгравии отличается не только близким расположением к общественным транспортным путям, но и наличием множества высококлассных образовательных заведений. К числу таковых можно определить:
Школа More House - 0,2 мили
Школа Hill House International - 0,2 мили
Eaton House Belgravia - 0,3 мили
Колледж Abbey, London - 0,3 мили
Колледж Saint Thomas More Language - 0,5 мили
| Магазины, рестораны | 500 м |
|---|---|
| Аэропорт | 12 км |
Дизайн и интерьер: Встроенные шкафы; Оборудованная кухня
Территория: Парковка; Сад
Окружение: Развитая инфрастуктура

