Продажа : Изумительная двухуровневая квартира в районе Белгравия, Лондон
Спален: 2, Ванных комнат: 2
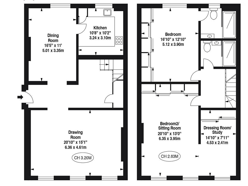
Площадь: 151м2
Район: Белгравия, Лондон
Общая площадь: 151 м2
Жилая площадь: 102 м2
Этажность дома: 5
Спальных комнат: 2
Ванных комнат: 2
Гостиных комнат: 2
Закрытая и просторная кухня
Гардеробная
Частный сад
Консьерж
Ближайшая станция метро: Victoria
Изумительная двухуровневая квартира, размещенная на втором и третьем этажах, отличается стильным ремонтом и отличной спецификацией. Спроектированная в классическом английском доме с отштукатуренными белыми фасадами, она является престижным вариантом жилья в центре Лондона. План помещения включает две двухместные спальни со встроенными гардеробами, а также две гостиные, одна из которых располагается рядом с кухней и может быть использована, как просторная столовая зона.
Из всех окон помещения открывается потрясающий вид: на красоту района либо ухоженный внутренний сад здания. В трех комнатах спроектирован камин, что добавляет уюта помещению. Кухня олицетворяет собой идеальное помещение для творения кулинарных шедевров, ведь здесь интегрирована отличная бытовая техника и встроен эргономичный мебельный гарнитур. Стильная и высококлассная отделка, наполнение душевых комнат также приятно порадуют вас.
Месторасположение и окрестности
Рассматриваемая недвижимость в Лондоне очень скоро будет продана, ведь ее отличает не только отличное обустройство, но и выгодное месторасположение. В округе этого жилого здания расположены:
Многочисленные рестораны и кафе, отели и закрытые ночные клубы;
Два больших спортивных комплекса;
Несколько продуктовых магазинов, включая сырную лавку и супермаркет крупной торговой сети;
Многочисленные парковые участки, сады и скверы, делающие Лондон неподражаемым.
Транспортная сеть
Всякий боро британской столицы отличается хорошо развитыми коммуникациями, а Белгравия, будучи небольшим и центральным районом мегаполиса не страдает от недостатка транспортных маршрутов. Квартира расположена недалеко от:
Ст. метрополитена Victoria (0.2 мили)
Ж/д терминала Victoria (0.2 мили)
Ст. метрополитена Sloane Square (0.5 мили)
Аэропорт London City (8.8 мили)
Учебные заведения
Выбранная вами квартира в Белгравии расположена в идеальном месте для поселения с детьми. В шаговой доступности от здания находится несколько престижных школ и колледжи Центрального Лондона, среди которых:
St Peter's Eaton Square CofE Primary School;
Eaton House Belgravia;
Abbey College, London;
Westminster City School;
Westminster Kingsway College
| Магазины, рестораны | 500 м |
|---|---|
| Аэропорт | 12 км |
Вид из окна: Город
Дизайн и интерьер: Встроенные шкафы; Оборудованная кухня
Планировка и отделка: Гардеробная комната
Территория: Сад
Окружение: Развитая инфрастуктура

