Продажа : Недостроенная вилла в Марбелье с панорамными видом на море, горы и Гибралтар
Спален: 5, Ванных комнат: 6
Площадь: 1000м2, Земля: 4300м2
Испания Коста дель Соль Марбелья
Проект комплекса из 3 соседних вилл с панорамным видом на море, горы и Марбелью.
Каждый дом можно приобрести отдельно, либо все виллы вместе.
Но этот момент строительство не завершено, текущее состояние: "в бетоне".
Цена за все 3 дома 7,5 млн евро. Торг
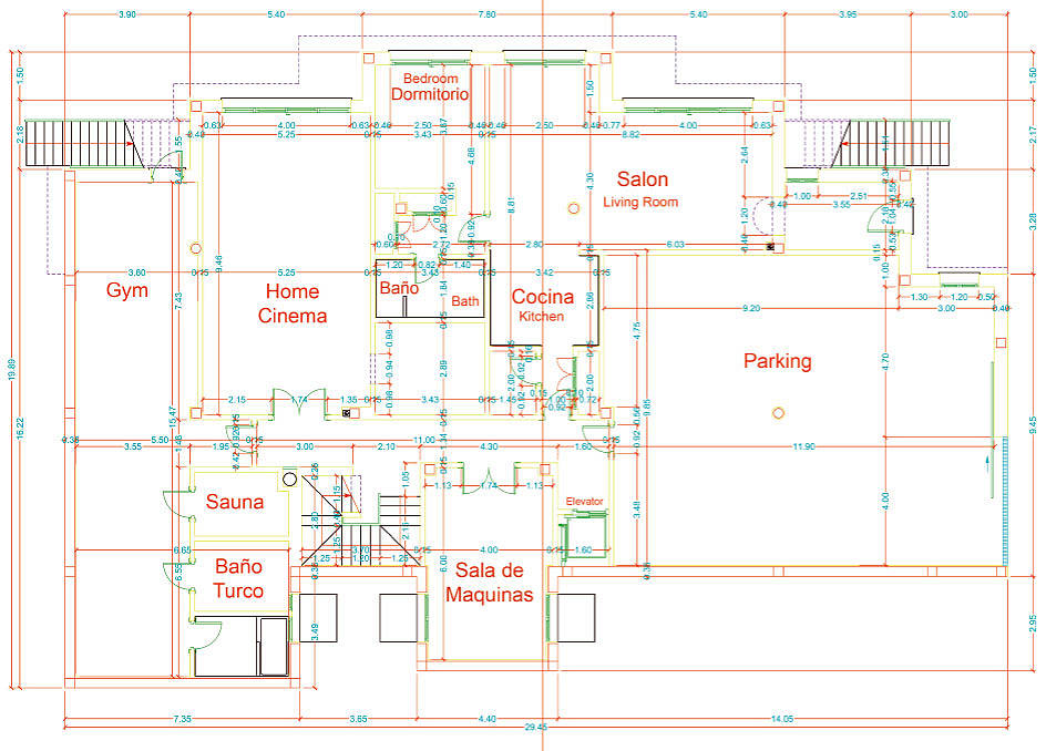
Проектом домов предусмотрено:
Монолитные строения со звукоизоляционными стенами, 3 резервуара с водой (питьевой, орошение, пожарный), терракотовая плитка на крыже.
Полы и ванные комнаты выстелены мрамором, большой бассейн, предустановка музыкальной системы, сигнализация, система "умный дом".
Полы с подогревом, системы кондиционирования воздуха, видео домофон.
На территории:
футбольное поле, теннисный корт, бассейн у каждого дома, декоративный мост, огороженная территория.
| Магазины, рестораны | 1200 м |
|---|---|
| Аэропорт | 55 км |
Вид из окна: Бассейн; Город; Горы; Море; Панорамный; Тропический сад
Дизайн и интерьер: Встроенные шкафы; Джакузи; Душевая кабина; Интернет; Оборудованная кухня; Сауна; Спутниковое ТВ; Телефон; Турецкая баня
Планировка и отделка: Акустическая изоляция; Бильярдная; Винный погреб; Гардеробная комната; Камин; Кинозал; Кладовая; Кондиционер тепло/холод; Моторизованные жалюзи; Мраморные полы; Подвал; Подогрев полов; Прачечная; Ремонт; Система 'Умный Дом'; Спортивный зал; Стеклопакеты
Территория: Автоматические ворота; Апартамент для гостей; Барбекю зона; Бассейн; Гараж; Домофон; Лифт; Парковка; Подсветка бассейна; Подсветка дома; Подсветка сада; Сигнализация; Система автополива; Теннисный корт; Ухоженный тропический сад
Окружение: Поле для гольфа; Развитая инфрастуктура

